Beschikbaarheid controleren
Trollbäcken 66 Ö
Sälen, TrollbäckenAccommodatie
Trollbäcken bevindt zich dicht bij liften en diensten. De eenheden zijn centraal gelegen in Hundfjället en zijn geschikt voor grote partijen of twee families die onder hetzelfde dak willen blijven. Het gebied heeft een eigen incheck- en ski-verhuur en ligt op loopafstand van liften of skistarshop en restaurants.
In het kort
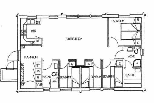
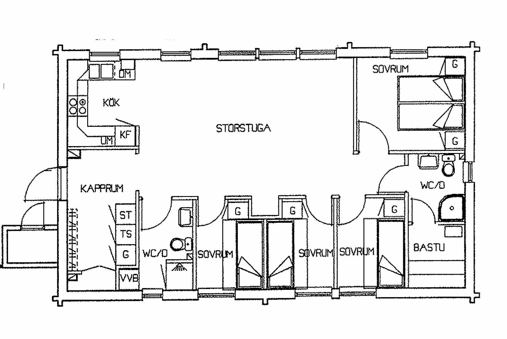
Trollbäcken ligt in Hundfjället. Appartement op de tweede verdieping, 8 bedden, 80 m², woonkamer met gecombineerde keuken, 4 slaapkamers, 2 douches, 2 WC, sauna.
Appartement
8 bedden
500m tot de lift
De keuken is voorzien van fornuis met oven, koelkast, vriezer, vaatwasser, magnetron.
Badkamers:Badkamer 1: met douche/WC/sauna. Badkamer 2: met douche/WC.
Slaapkamers:Slaapkamer-1 = 1 tweepersoonsbed. Slaapkamer-2 = 1 stapelbed met 120 cm breed onderbed. Slaapkamer-3 = 1 stapelbed met 120 cm breed onderbed. Slaapkamer-4 = 1 stapelbed met 120 cm breed onderbed.
Goed om te weten:Geen huisdieren toegestaan, roken niet toegestaan, NB! niet schoongemaakt voor allergische personen.
Alle verblijvende personen moeten 18 jaar of ouder zijn om in de accommodatie te kunnen verblijven. Bij aankomst wordt een identiteitsbewijs verstrekt. De leeftijdsgrens heeft geen betrekking op kinderen die begeleid worden door een voogd.
Het dichtstbijzijnde skigebied is Hundfjället. De afstand tot het skigebied bedraagt circa 300-500 m. De afstand tot de lift/piste kan variëren, afhankelijk van de sneeuwcondities.
Woonkamer met gecombineerde keuken.
TV, droogkast, 1 kinderstoel, berging voor ski’s.
Faciliteiten
Onderstaand vind je een overzicht van alle faciliteiten in deze accommodatie. Geniet van een ontspannen en comfortabel verblijf op deze fijne plek.
Appartement
Oplaadpaal8 bedden
500m tot de lift
WifiBalkonHuisdieren toegestaanVaatwasser

WasmachineDroogruimte

OpenhaardKoelkast
Roken verboden
Magnetron

BubbelbadSauna

Zwembad
Prijsinformatie
| Periode (Gekozen aankomst datum 17-04-2026) | Prijs |
|---|---|
|
Er zijn voor deze datum geen opties beschikbaar. |
|
Inbegrepen extra's
Bij te boeken / niet inbegrepen extra's
Skigebied Sälen (Zweden)
Sälen is dé familiebestemming van Zweden, met meerdere skigebieden, vriendelijke pistes en volop kindervoorzieningen. Ideaal voor gezinnen met jonge kinderen die op zoek zijn naar gemak, gezelligheid en een ontspannen wintersport in een sfeervolle omgeving.
Sälen is dé familiebestemming van Zweden en bestaat uit meerdere gezellige deelskigebieden, elk met hun eigen karakter. Het ligt vlak bij de Noors-Zweedse grens en is perfect voor gezinnen met (jonge) kinderen die op zoek zijn naar gemak, rust en kindvriendelijke pistes.
Laagdrempelig en overzichtelijk
Met meer dan 100 pistes – vooral groen en blauw – is Sälen ideaal voor beginnende skiërs en families. In elk deeldorp vind je oefenliften, kinderpistes en skischolen. De sfeer is ontspannen en nergens echt druk.
Veelzijdig en volledig gericht op gezinnen
Van mascottes en kinderactiviteiten tot verwarmde picknickhutjes en korte loopafstanden: alles in Sälen is ingericht op comfort en plezier voor het hele gezin. Een veilige en gezellige plek voor een eerste (of ontspannen) wintersport.
De leukste belevenissen in Sälen
Dagje langlaufen – actief buiten de piste!
Zin in frisse lucht en beweging buiten de skipistes? Probeer langlaufen – dé sport van de Noren! Je glijdt op smalle ski’s door bossen en over open vlaktes, in een ritmisch en intensief tempo dat je hele lichaam aan het werk zet.
Langlaufen is in Noorwegen een wintertraditie, met loipes voor elk niveau. Rustig of juist sportief – jij kiest het tempo.
Wij regelen graag een les en de huur van het materiaal.
Prijs op aanvraag
Hondensledetocht met husky’s
Maak een onvergetelijke tocht door het winterse landschap met een hondenslee, voortgetrokken door een team enthousiaste husky’s. Onder begeleiding van een ervaren gids glijd je geruisloos door besneeuwde bossen en over open vlaktes.
Je maakt kennis met de honden en leert hoe je de slee bestuurt: één zit in de slee, de ander staat achterop. Halverwege wissel je van plek. De tochten variëren van korte ritten tot langere avonturen.
Richtprijs: €85 - €155 p.p.
Hoe kun je het beste naar Sälen reizen?
Naar Sälen Noorwegen reizen kan met de eigen auto (per ferry), of met het vliegtuig en een transfer met bus of huurauto naar je accommodatie.
In je offerte-aanvraag kun je je voorkeuren aangeven of je met de boot of het vliegtuig wilt reizen, je ontvangt dan een compleet voorstel met totaalprijs voor jouw skivakantie Noorwegen.
Boot
Op wintersport naar Sälen Zweden? Dat kan makkelijk én comfortabel met de boot. De populairste route is de Color Line overtocht van Kiel naar Oslo: een luxe mini-cruise waarbij je ontspannen aankomt in Noorwegen. Vanaf de haven in Oslo is het ongeveer 3 uur rijden naar Sälen — je komt uitgerust aan en bent klaar voor de sneeuw!
Hieronder vind je meer informatie over de verschillende ferries. Laat gerust je voorkeur weten bij je aanvraag – wij denken graag met je mee en boeken je complete reis voor je!
Een bijzondere manier om je skivakantie te beginnen is met de luxe cruiseferry van Color Line. Veel van onze klanten kiezen elk jaar voor deze ontspannen start van hun vakantie. Je vertrekt met eigen auto richting Kiel in Noord Duitsland (slechts 5 uur rijden vanuit Utrecht) en vanuit daar vertrekt de ferry om 14.00 uur, via de Deense wateren richting Noorwegen. Onderweg geniet je van alle faciliteiten, zoals diverse restaurants, winkels, zwemparadijs, wellness en theatershow. Voor kinderen én ouders een unieke ervaring!
Een mini-cruise ervaring door het Oslo fjord
Terwijl je slaapt in een comfortabele hut, vaart het schip verder en de volgende ochtend word je uitgerust wakker en vaar je door het prachtige Oslofjord. Je komt om 10 uur ’s ochtends uitgerust aan in Oslo. Zo is je vakantie al begonnen voordat je op de ski’s staat!
Comfortabel overnachten in een luxe hut
Of je nu kiest voor een binnenhut of een buitenhut met uitzicht over zee, je bent verzekerd van een goede nachtrust op een heel comfortabel bed. Er zijn verschillende typen hutten, van luxe 3- en 4-sterren hutten tot suites met extra ruimte en comfort. Zo is er altijd een hut die past bij jouw wensen.
Vertrektijden
- Heenreis (per eigen auto naar Kiel – 5 uur rijden vanaf Utrecht):
Vertrek Kiel 14.00 uur – Aankomst Oslo 10.00 uur (volgende dag) - Terugreis (per eigen auto naar Oslo):
Vertrek: Oslo 14.00 uur – Aankomst Kiel 10.00 uur (volgende dag)
Prijzen overtocht
De tarieven voor de bootovertochten zijn continu aan verandering onderhevig (dynamische prijzen die fluctueren afhankelijk van het seizoen en je boekingsdatum).
Vanaf prijzen:
- voor 2 pers. In 2 p. hut + auto: vanaf € 388,- p.p. retour
- voor 4 pers. In 4 p. hut + auto: vanaf € 249,- p.p. retour
Boek Color Line met concurrerende prijzen via Scandic Booking
Door onze jarenlange samenwerking met Colorline ontvangen wij scherpere prijzen. Hierdoor ben je met een pakketreis via Scandic Booking altijd voordeliger uit dan wanneer je de bootovertocht zelf los boekt. Je kunt via ons een voorstel aanvragen, dan sturen wij je een reisvoorstel op maat.
Begin je wintersportvakantie op een comfortabele manier met een overtocht van Stena Line. Veel reizigers kiezen voor deze relaxte route via Duitsland en Zweden.
Ontspannen naar Zweden met de ferry van Stena Line
Je rijdt met je eigen auto naar Kiel (ongeveer 5 uur vanaf Utrecht) en vertrekt ’s avonds richting Göteborg. Aan boord geniet je van een rustige avond, een dinerbuffet als je wilt, en een goede nachtrust in je eigen hut.
Aan boord: eten, relaxen en comfortabel slapen
Stena Line biedt verschillende faciliteiten om je overtocht aangenaam te maken. Er zijn restaurants, bars en een winkel aan boord. Overnachten doe je in een van de vele huttypes: van eenvoudige binnenhutten tot luxe Panorama Jacuzzi Suites. Alle hutten zijn uitgerust met beddengoed en een eigen badkamer met douche, toilet en verzorgingsproducten. Voor een complete reiservaring kun je bij ons vooraf het diner- en/of ontbijtbuffet reserveren.
Stena Line: ’s nachts varen, ’s ochtends aankomen
Terwijl jij slaapt, vaart de ferry richting Zweden. De volgende ochtend word je uitgerust wakker in Göteborg en kun je direct doorrijden naar je wintersportbestemming.
Vertrektijden
- Heenreis (eigen auto naar Kiel):
Vertrek Kiel 18.45 uur – Aankomst Göteborg 09.15 uur (volgende dag) - Terugreis (eigen auto naar Göteborg):
Vertrek Göteborg 18.45 uur – Aankomst Kiel 09.15 uur (volgende dag)
Tarieven overtocht
De prijzen van de ferry zijn afhankelijk van het seizoen en de boekingsdatum (dynamische prijzen). Boek je de overtocht in combinatie met een accommodatie bij ons, dan profiteer je altijd van een voordeliger tarief dan via de rederij zelf.
Voorbeeldprijzen retour (auto + hut):
- 2 personen in een 2-persoons hut: vanaf € 380,- retour
Maaltijden aan boord
- Ontbijtbuffet: € 13,- (volw.) / € 7,50 (kind 4-15 jaar)
- All-inclusive dinerbuffet*: € 36,- (volw.) / € 18,- (kind 4-15 jaar)* inclusief bier, wijn, frisdranken en koffie
Tip! Boek diner & show voor een bijzondere reiservaring!
Kies je voor de overtocht met de Color Line ferry tijdens je wintersport naar Noorwegen? Maak er een complete avond uit van, door vooraf een dinerbuffet of 3-gangen a la carte diner te reserveren. Daarnaast kun je via ons ook een tafel boeken voor de live entertainment show aan boord. Met name op drukke afvaarten is het snel volgeboekt, dus het is slim om op tijd te reserveren.
Geef in je offerte-aanvraag aan dat je een tafel voor diner en/of show wilt reserveren – dan regelen wij de rest!
Vliegarrangement
Indien je liever met het vliegtuig naar je wintersportvakantie gaat, dan kun je via ons ook je vlucht en huurauto naar Sälen boeken. Je vliegt dan naar Oslo Gardermoen en daar staat je huurauto klaar.
Via onze betrouwbare partner regelen we dit graag voor je.
Wil je een compleet vliegarrangement inclusief huurauto bijboeken? Geef het aan bij je offerte-aanvraag, dan stellen we een passend pakket voor je samen!
Nb. Er zijn ook beperkte mogelijkheden om te vliegen op Scandinavian airport in Sälen vanaf Grongingen en Amsterdam.
Skipas, - lessen en verhuur
Wil je materiaal huren, lessen boeken of skipassen vantevoren kopen? Dit kun je toevoegen aan je reis in de volgende stappen van je offerte-aanvraag.
Skipassen
Prijzen en kopen van skipas in Sälen
De kosten van een skipas in Sälen zijn afhankelijk van het seizoen en de koers van de Noorse kroon. Je kunt je skipas ter plekke kopen, maar het is altijd voordeliger om van tevoren je skipassen te reserveren.
Bestel je skipas via Scandic Booking voor extra korting
Het is het makkelijkst en voordeligste om je skipassen vantevoren via Scandic Booking te bestellen. Je ontvangt dan een QR code, waarmee je de pas ter plekke uit een skipas-automaat haalt. Als je een bestaande skipas hebt dan kunnen we deze ook vantevoren voor je opwaarderen.
Boek je voor 1 oktober via Scandic Booking dan krijg je 10% vroegboekkorting op je skipassen.
Wat zijn de kosten van een skipas/ liftpas in skigebied Sälen?
Voor een dagkaart of liftpas van 6-8 dagen kun je in Sälen rekening houden met onderstaande richtprijzen. Deze prijzen variëren afhankelijk van seizoen en wisselkoers:
Richtprijzen skipas Sälen
Prijzen skipas 1 dag (hoogseizoen):
-
- Volwassene: ± € 58,-
-
- Senior & jeugd (7-17 jr): ± €. 46,-
- Kind (0-6 jr): gratis
Prijzen skipas 6-8 dagen (hoogseizoen):
-
- Volwassene: ± €285,-
-
- Senior & jeugd (7-17 jr): ± €230,-
- Kind (0-6 jr): gratis
Wil je je skipassen van tevoren via ons reserveren, geef dit dan aan in je offerte-aanvraag, dan nemen wij dit mee in je reisvoorstel.
Lessen
Snowboard-, langlauf of skilessen boeken in Sälen?
Indien je les wilt nemen tijdens je wintersport in Sälen dan raden wij je aan om je lessen zo ver mogelijk van tevoren te regelen, want tijdens het hoogseizoen zijn er ter plekke niet altijd voldoende instructeurs beschikbaar indien je niet hebt gereserveerd.
Let op: in tegenstelling tot de Alpenlanden, duren de groepslessen in Noorwegen vaak maar 90 minuten. Voor kinderen is er eventueel wel opvang te boeken indien je dat wilt.
Zeker weten dat je les kunt nemen? Reserveer van tevoren via Scandic Booking
Geef in je offerte-aanvraag of accommodatieboeking aan dat je lessen wilt reserveren, dan nemen wij contact met je op om te inventariseren wat voor lessen je wilt, voor hoeveel personen en wat je voorkeuren zijn qua data, tijd en type les zodat we een geschikte skischool voor je kunnen zoeken.
Richtprijzen voor snowboard-, langlauf en skilessen Sälen
De prijzen voor lessen zijn voornamelijk afhankelijk van of je privéles of groepsles wilt en van de wisselkoers op het moment van boeking. Je kunt ongeveer rekenen op:
Groepsles: ± €90,- (5 dagen x 75 min.)
Privéles: ± €106,- (75 min.)
Wil je je lessen van tevoren via ons reserveren, geef dan je voorkeuren en wensen aan in je offerte-aanvraag, dan nemen wij dit mee in je reisvoorstel.
Materiaalhuur
Snowboard of ski’s huren in Sälen
Materiaalhuur is via ons vaak voordeliger dan via lokale partijen (en in elk geval nooit duurder dan ter plekke). Bespaar jezelf de moeite van ‘het geregel’ en reserveer je materiaal via ons, dan zorgen wij dat alles voor je klaarstaat bij onze partner.
Materiaalhuur via Scandic Booking
In de volgende stappen van je offerte-aanvraag kun je aangeven of je via ons materiaal wilt huren. Wij nemen dan contact met je op om te inventariseren welk materiaal je nodig hebt en voor welke dagen, zodat wij ervoor kunnen zorgen dat alles al voor je klaar ligt bij aankomst.
Prijsindicatie materiaalhuur
De prijzen voor het materiaal kunnen variëren afhankelijk van seizoen, verhuurder en wisselkoers. Geef in je offerte-aanvraag je wensen aan, dan nemen wij je materiaalhuur mee in je reisvoorstel.
Richtprijzen compleet pakket skihuur 6-8 dagen (hoogseizoen):
-
- Volwassene beginner: ± €88,- (beginner), ± €95,- (has skied before), ± €114,- (can ski all slopes), ± €153,- (advanced)
-
- Jeugd (7-17 jr): ± €61,-
- Kind (0-6 jr) :± €35,-
Richtprijzen compleet pakket skihuur 1 dag (hoogseizoen):
-
- Volwassene beginner: ± €30,- (beginner), ± €37,- (has skied before), ± €43,- (can ski all slopes), ± €54,- (advanced)
-
- Jeugd (7-17 jr): ± €20,-
- Kind (0-6 jr) :± €9,-
Aantal personen
Gekozen aankomst datum
Duur?
vanaf?
In de stappen na “Reserveer nu” kun je je reis naar wens op maat aanpassen (bijvoorbeeld vluchtarrangement of boot toevoegen, maaltijden, skipassen, excursies reserveren en materiaal huren of extra’s zoals haardhout of babybed toevoegen.
- © 2026 Scandic Booking
- Algemene voorwaarden
- Privacyverklaring

