Beschikbaarheid controleren
Mosetra 2054
Trysil, Trysilfjellet HytteområdeAccommodatie
Particuliere hutten zijn beschikbaar in het gebied genaamd trysilfjell hytteområde. Deze hutten hebben allemaal persoonlijke accenten, maar de standaard varieert evenals de afstand tot de pistes. Hutten zijn beschikbaar voor 4-22 personen, en de meeste zijn ski in/ ski out out. Sommige hutten bevinden zich waar transport nodig is (door Skibus) van en naar de pistes.
In het kort
Hytter gevestigd in Trysilfjell Hytteområde.
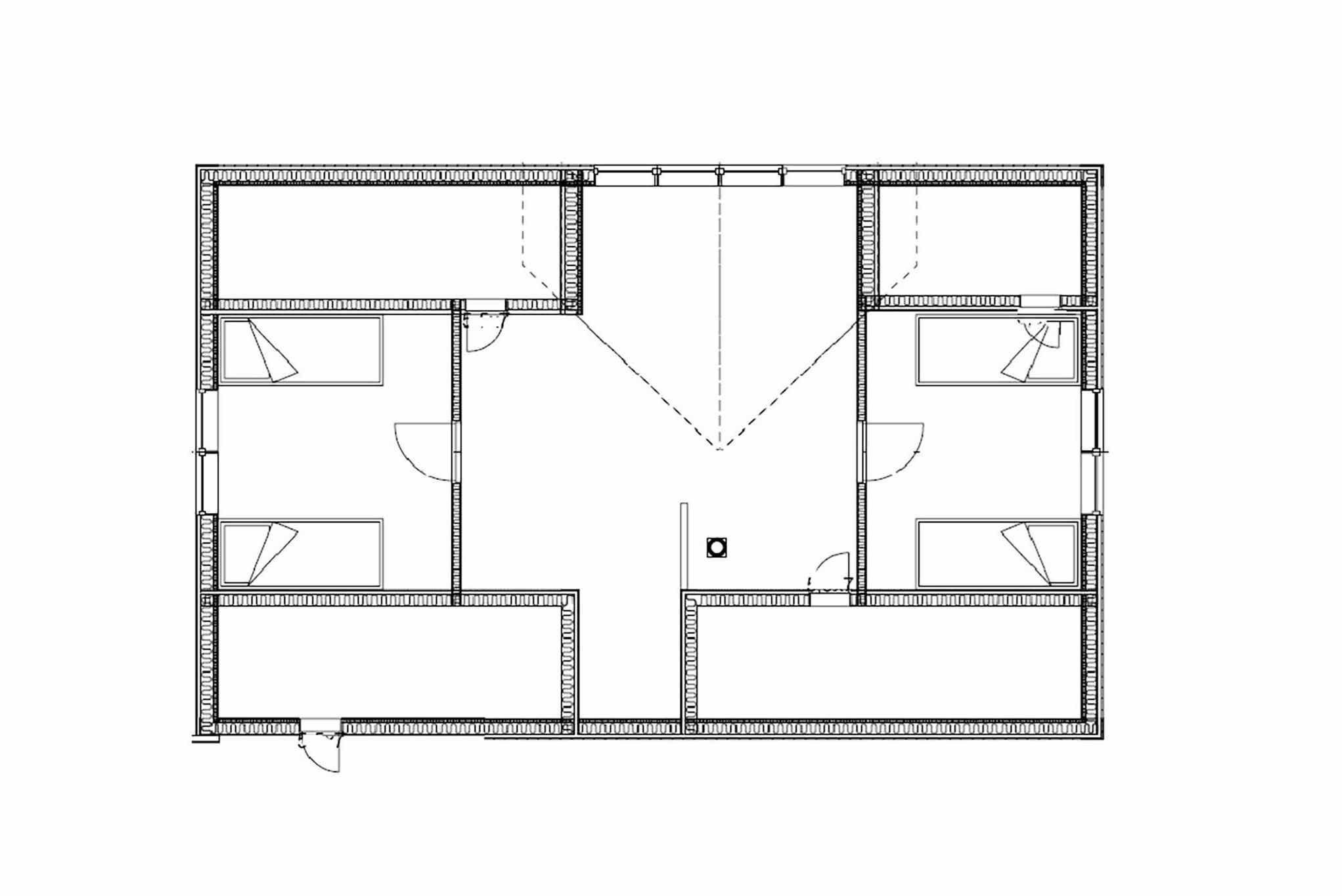
Vrijstaand huisje, 8 bedden, 112 m², woonkamer met gecombineerde keuken, 4 slaapkamers, 1 douches, 2 toiletten.
Huisje
8 bedden
3200m tot de lift
Wifi
De unit is voorzien van vaatwasser, magnetron, koelkast, vriezer.
Badkamers:Badkamer 1: met douche en toilet. Badkamer 2: met toilet.
Slaapkamers:Slaapkamer 1= 1 tweepersoonsbed 160 cm breed. Slaapkamer 2= 2 eenpersoonsbedden. Slaapkamer 3= 2 eenpersoonsbedden. Slaapkamer 4= 1 stapelbed van 90 cm breed.
Goed om te weten:Geen huisdieren toegestaan, roken niet toegestaan.
De minimumleeftijd om dit apparaat te boeken is 18 jaar voor de gast. Niemand onder de 18 jaar kan in het apparaat verblijven, NB! Geldt niet voor gezinnen. De persoon die verantwoordelijk is voor de boeking moet het gehele verblijf in de unit wonen.
Overig:Woonkamer met TV, open haard.
Laarzendroogkast, droogruimte, droogkast, skiberging.
Toegang tot gratis Wi-Fi (mogelijke onderbrekingen bij een deel van de breedbandaanbieder voorbehouden).
Afstanden: Pendelbusdienst, De afstand tot de lift/pistes kan variëren, afhankelijk van de sneeuwcondities, transportbaan 350 meter, skilift 3200 meter, langlaufloipes 350 meter.
Faciliteiten
Onderstaand vind je een overzicht van alle faciliteiten in deze accommodatie. Geniet van een ontspannen en comfortabel verblijf op deze fijne plek.
Huisje
Oplaadpaal8 bedden
3200m tot de lift
Wifi
Balkon
Huisdieren toegestaanVaatwasser

WasmachineDroogruimte
OpenhaardKoelkast
Roken verboden
Magnetron

BubbelbadSauna
Zwembad
Prijsinformatie
| Periode (Gekozen aankomst datum 19-04-2026) | Prijs |
|---|---|
| 4 nachten | vanaf €984,- |
| 5 nachten | vanaf €1124,- |
| 7 nachten | vanaf €1610,- |
| 1 nacht | vanaf €497,- |
| 2 nachten | vanaf €775,- |
| 3 nachten | vanaf €1054,- |
Inbegrepen extra's
-
Eindschoonmaak
Bij te boeken / niet inbegrepen extra's
-
Haardhout
-
Kinderstoel
-
Kinderbed
-
Linnenpakket
Skigebied Trysil
Trysil is het grootste en meest sneeuwzekere skigebied van Noorwegen. Je vindt hier brede en rustige pistes met schitterende uitzichten (aanrader: ski bij zonsopkomst!). Veel lekkere restaurants, korte wachttijden bij de liften en leuke kinderactiviteiten.
Trysil is gebouwd rond de berg Trysilfjellet (1.132 m) en ligt op slechts twee uur rijden van Oslo. Het is het grootste en meest sneeuwzekere skigebied van Noorwegen, met uitstekende pistecondities en een fijne mix van uitdaging en ontspanning.
Ski-in/ski-out en familievriendelijk
Veel accommodaties liggen aan of vlakbij de piste – ideaal voor een zorgeloze ski-in/ski-out vakantie. Trysil is perfect voor families, met kindergebieden, skischolen en een ontspannen sfeer.
Voor elk type wintersporter
Met ruim 80 kilometer aan pistes en 68 afdalingen is er genoeg variatie voor zowel beginners als gevorderde skiërs en snowboarders. Freestylers kunnen zich uitleven in een van de beste snowparks van Noorwegen, met sprongen, rails en een funslope. Voor langlaufers is er 100 kilometer aan loipes.
De leukste activiteiten in Trysil
Naast skiën of snowboarden kun je tijdens je wintersport in Trysil zoveel meer beleven: van winterse avonturen zoals sneeuwschoenwandelen, langlaufles nemen of een huskytour doen, tot het Noorderlicht spotten of avondskiën. Ontdek hieronder onze favoriete tips voor de leukste activiteiten in het Trysil skigebied.
Wil je een van onderstaande activiteiten doen? Geef dit dan direct aan in je offerte-aanvraag, want excursies en activiteiten zitten snel vol in het hoogseizoen.
Sfeervolle arrensleetocht door besneeuwd Trysil
Beleef een magische arrensleetocht door de diepe, besneeuwde bossen van Trysil, begeleid door vriendelijke paarden en ervaren gidsen van Trysil Hestesenter.
De tocht leidt naar een gezellige lavvu, waar u kunt genieten van een heerlijke 3-gangen huisgemaakte maaltijd of warme drankjes met gegrilde elandworstjes.
Duur: lengte van de tocht varieert.
Geschikt voor: alle leeftijden
€ 35 p.p.
Wandeling en Noorderlicht bij kampvuur
Wandel met een gids door het magische winterlandschap van Trysil zodra de zon onder is. Na een korte introductie start de sneeuwschoenentocht van ca. 3 uur, geschikt voor avonturiers vanaf 7 jaar.
Bij een knisperend kampvuur geniet je van warme dranken en snacks, terwijl je wacht op het betoverende noorderlicht. Een onvergetelijke ervaring onder de sterrenhemel van Trysil.
Duur: ongeveer 3 uur.
Geschikt voor: avonturiers vanaf 7 jaar.
€ 40-80 p.p.
Hondensledetocht met Fjell-Huskies
Ervaar een magische hondensledetocht door de besneeuwde bossen van Trysil met Fjell-Huskies. Onder begeleiding van ervaren gidsen glijd je geruisloos door het winterlandschap, getrokken door een enthousiast huskyteam.
De tochten starten bij Sæteråsen en zijn geschikt voor avonturiers van 4 tot 99 jaar.
Duur: zowel korte als lange tours mogelijk.
Geschikt voor: vanaf 4 jaar.
€ 85-105 p.p.
Sneeuwschoenwandelen met gids
Ga mee op een sneeuwschoenentocht door het sprookjesachtige winterlandschap van Trysil. Onder begeleiding van een gids wandel je door stille bossen en over open velden.
Onderweg is er tijd voor verhalen, een warm drankje en genieten van het uitzicht.
Duur: ca. 2 uur.
Geschikt voor: alle leeftijden.
€ 30-50 p.p.
Hoe kun je het beste naar Trysil reizen?
Naar Trysil Noorwegen reizen kan met de eigen auto (per ferry), of met het vliegtuig en een transfer met bus of huurauto naar je accommodatie.
In je offerte-aanvraag kun je je voorkeuren aangeven of je met de boot of het vliegtuig wilt reizen, je ontvangt dan een compleet voorstel met totaalprijs voor jouw skivakantie Noorwegen.
Boot
Op wintersport naar Trysil Noorwegen? Dat kan makkelijk én comfortabel met de boot. De populairste route is de Color Line overtocht van Kiel naar Oslo: een luxe mini-cruise waarbij je ontspannen aankomt in Noorwegen. Vanaf de haven in Oslo is het nog maar 2,5 uur rijden naar Trysil — je komt uitgerust aan en bent klaar voor de sneeuw!
Hieronder vind je meer informatie over de verschillende ferries. Laat gerust je voorkeur weten bij je aanvraag – wij denken graag met je mee en boeken je complete reis voor je!
Een bijzondere manier om je skivakantie te beginnen is met de luxe cruiseferry van Color Line. Veel van onze klanten kiezen elk jaar voor deze ontspannen start van hun vakantie. Je vertrekt met eigen auto richting Kiel in Noord Duitsland (slechts 5 uur rijden vanuit Utrecht) en vanuit daar vertrekt de ferry om 14.00 uur, via de Deense wateren richting Noorwegen. Onderweg geniet je van alle faciliteiten, zoals diverse restaurants, winkels, zwemparadijs, wellness en theatershow. Voor kinderen én ouders een unieke ervaring!
Een mini-cruise ervaring door het Oslo fjord
Terwijl je slaapt in een comfortabele hut, vaart het schip verder en de volgende ochtend word je uitgerust wakker en vaar je door het prachtige Oslofjord. Je komt om 10 uur ’s ochtends uitgerust aan in Oslo. Zo is je vakantie al begonnen voordat je op de ski’s staat!
Comfortabel overnachten in een luxe hut
Of je nu kiest voor een binnenhut of een buitenhut met uitzicht over zee, je bent verzekerd van een goede nachtrust op een heel comfortabel bed. Er zijn verschillende typen hutten, van luxe 3- en 4-sterren hutten tot suites met extra ruimte en comfort. Zo is er altijd een hut die past bij jouw wensen.
Vertrektijden
- Heenreis (per eigen auto naar Kiel – 5 uur rijden vanaf Utrecht):
Vertrek Kiel 14.00 uur – Aankomst Oslo 10.00 uur (volgende dag) - Terugreis (per eigen auto naar Oslo):
Vertrek: Oslo 14.00 uur – Aankomst Kiel 10.00 uur (volgende dag)
Prijzen overtocht
De tarieven voor de bootovertochten zijn continu aan verandering onderhevig (dynamische prijzen die fluctueren afhankelijk van het seizoen en je boekingsdatum).
Vanaf prijzen:
- voor 2 pers. In 2 p. hut + auto: vanaf € 388,- p.p. retour
- voor 4 pers. In 4 p. hut + auto: vanaf € 249,- p.p. retour
Boek Color Line met concurrerende prijzen via Scandic Booking
Door onze jarenlange samenwerking met Colorline ontvangen wij scherpere prijzen. Hierdoor ben je met een pakketreis via Scandic Booking altijd voordeliger uit dan wanneer je de bootovertocht zelf los boekt. Je kunt via ons een voorstel aanvragen, dan sturen wij je een reisvoorstel op maat.
Begin je wintersportvakantie op een comfortabele manier met een overtocht van Stena Line. Veel reizigers kiezen voor deze relaxte route via Duitsland en Zweden.
Ontspannen naar Zweden met de ferry van Stena Line
Je rijdt met je eigen auto naar Kiel (ongeveer 5 uur vanaf Utrecht) en vertrekt ’s avonds richting Göteborg. Aan boord geniet je van een rustige avond, een dinerbuffet als je wilt, en een goede nachtrust in je eigen hut.
Aan boord: eten, relaxen en comfortabel slapen
Stena Line biedt verschillende faciliteiten om je overtocht aangenaam te maken. Er zijn restaurants, bars en een winkel aan boord. Overnachten doe je in een van de vele huttypes: van eenvoudige binnenhutten tot luxe Panorama Jacuzzi Suites. Alle hutten zijn uitgerust met beddengoed en een eigen badkamer met douche, toilet en verzorgingsproducten. Voor een complete reiservaring kun je bij ons vooraf het diner- en/of ontbijtbuffet reserveren.
Stena Line: ’s nachts varen, ’s ochtends aankomen
Terwijl jij slaapt, vaart de ferry richting Zweden. De volgende ochtend word je uitgerust wakker in Göteborg en kun je direct doorrijden naar je wintersportbestemming.
Vertrektijden
- Heenreis (eigen auto naar Kiel):
Vertrek Kiel 18.45 uur – Aankomst Göteborg 09.15 uur (volgende dag) - Terugreis (eigen auto naar Göteborg):
Vertrek Göteborg 18.45 uur – Aankomst Kiel 09.15 uur (volgende dag)
Tarieven overtocht
De prijzen van de ferry zijn afhankelijk van het seizoen en de boekingsdatum (dynamische prijzen). Boek je de overtocht in combinatie met een accommodatie bij ons, dan profiteer je altijd van een voordeliger tarief dan via de rederij zelf.
Voorbeeldprijzen retour (auto + hut):
- 2 personen in een 2-persoons hut: vanaf € 380,- retour
Maaltijden aan boord
- Ontbijtbuffet: € 13,- (volw.) / € 7,50 (kind 4-15 jaar)
- All-inclusive dinerbuffet*: € 36,- (volw.) / € 18,- (kind 4-15 jaar)* inclusief bier, wijn, frisdranken en koffie
Vliegarrangement
Indien je liever met het vliegtuig naar je wintersportvakantie gaat, dan kun je via ons ook je vlucht en transfer naar Trysil boeken. Je vliegt dan naar Oslo Gardermoen en vanaf daar zijn er twee handige opties om verder te reizen:
Optie 1: vliegarrangement met de bus naar Trysil
We kijken eerst met je mee of jouw accommodatie en het ophalen van de sleutel wel makkelijk te doen zijn vanaf de bushalte in Trysil en op basis daarvan zoeken wij de beste vlucht- en bus aansluitingen tegen de meest gunstige prijs voor je uit. De bus brengt je comfortabel in 2,5 – 3 uur naar Trysil.
Optie 2: vliegarrangement met een huurauto naar Trysil
Ideaal als je flexibel wilt zijn, ook in Trysil zelf. Via onze betrouwbare partner regelen we dit graag voor je.
Wil je een compleet vliegarrangement inclusief bus of huurauto bijboeken? Geef het aan bij je offerte-aanvraag, dan stellen we een passend pakket voor je samen!
Skipas, - lessen en verhuur
Wil je materiaal huren, lessen boeken of skipassen vantevoren kopen? Dit kun je toevoegen aan je reis in de volgende stappen van je offerte-aanvraag.
Skipassen
Prijzen en kopen van skipas in Trysil
De kosten van een skipas in Trysil zijn afhankelijk van het seizoen en de koers van de Noorse kroon. Je kunt je skipas ter plekke kopen, maar het is altijd voordeliger om van tevoren je skipassen te reserveren.
Bestel je skipas via Scandic Booking voor extra korting
Het is het makkelijkst en voordeligste om je skipassen vantevoren via Scandic Booking te bestellen. Je ontvangt dan een QR code, waarmee je de pas ter plekke uit een skipas-automaat haalt. Als je een bestaande skipas hebt dan kunnen we deze ook vantevoren voor je opwaarderen.
Boek je voor 1 oktober via Scandic Booking dan krijg je 10% vroegboekkorting op je skipassen.
Wat zijn de kosten van een skipas/ liftpas in skigebied Trysil?
Voor een dagkaart of liftpas van 6-8 dagen kun je in Trysil rekening houden met onderstaande richtprijzen. Deze prijzen variëren afhankelijk van seizoen en wisselkoers:
Richtprijzen skipas Trysil
Prijzen skipas 1 dag (hoogseizoen):
-
Volwassene: ± € 58,-
Senior & jeugd (7-17 jr): ± €. 46,-
Kind (0-6 jr): gratis
Prijzen skipas 6-8 dagen (hoogseizoen):
-
Volwassene: ± €285,-
Senior & jeugd (7-17 jr): ± €230,-
Kind (0-6 jr): gratis
Wil je je skipassen van tevoren via ons reserveren, geef dit dan aan in je offerte-aanvraag, dan nemen wij dit mee in je reisvoorstel.
Lessen
Snowboard-, langlauf of skilessen boeken in Trysil?
Indien je les wilt nemen tijdens je wintersport in Trysil dan raden wij je aan om je lessen zo ver mogelijk van tevoren te regelen, want tijdens het hoogseizoen zijn er ter plekke niet altijd voldoende instructeurs beschikbaar indien je niet hebt gereserveerd.
Let op: in tegenstelling tot de Alpenlanden, duren de groepslessen in Noorwegen vaak maar 90 minuten. Voor kinderen is er eventueel wel opvang te boeken indien je dat wilt.
Zeker weten dat je les kunt nemen? Reserveer van tevoren via Scandic Booking
Geef in je offerte-aanvraag of accommodatieboeking aan dat je lessen wilt reserveren, dan nemen wij contact met je op om te inventariseren wat voor lessen je wilt, voor hoeveel personen en wat je voorkeuren zijn qua data, tijd en type les zodat we een geschikte skischool voor je kunnen zoeken.
Richtprijzen voor snowboard-, langlauf en skilessen Trysil
De prijzen voor lessen zijn voornamelijk afhankelijk van of je privéles of groepsles wilt en van de wisselkoers op het moment van boeking. Je kunt ongeveer rekenen op:
Groepsles: ± €90,- (5 dagen x 75 min.)
Privéles: ± €106,- (75 min.)
Wil je je lessen van tevoren via ons reserveren, geef dan je voorkeuren en wensen aan in je offerte-aanvraag, dan nemen wij dit mee in je reisvoorstel.
Materiaalhuur
Snowboard of ski’s huren in Trysil
Materiaalhuur is via ons vaak voordeliger dan via lokale partijen (en in elk geval nooit duurder dan ter plekke). Bespaar jezelf de moeite van ‘het geregel’ en reserveer je materiaal via ons, dan zorgen wij dat alles voor je klaarstaat bij onze partner.
Materiaalhuur via Scandic Booking
In de volgende stappen van je offerte-aanvraag kun je aangeven of je via ons materiaal wilt huren. Wij nemen dan contact met je op om te inventariseren welk materiaal je nodig hebt en voor welke dagen, zodat wij ervoor kunnen zorgen dat alles al voor je klaar ligt bij aankomst.
Prijsindicatie materiaalhuur
De prijzen voor het materiaal kunnen variëren afhankelijk van seizoen, verhuurder en wisselkoers. Geef in je offerte-aanvraag je wensen aan, dan nemen wij je materiaalhuur mee in je reisvoorstel.
Richtprijzen compleet pakket skihuur 6-8 dagen (hoogseizoen):
-
Volwassene beginner: ± €88,- (beginner), ± €95,- (has skied before), ± €114,- (can ski all slopes), ± €153,- (advanced)
Jeugd (7-17 jr): ± €61,-
Kind (0-6 jr) :± €35,-
Richtprijzen compleet pakket skihuur 1 dag (hoogseizoen):
-
Volwassene beginner: ± €30,- (beginner), ± €37,- (has skied before), ± €43,- (can ski all slopes), ± €54,- (advanced)
Jeugd (7-17 jr): ± €20,-
Kind (0-6 jr) :± €9,-
Aantal personen
Gekozen aankomst datum
Duur?
vanaf?
€984,- €1124,- €1610,- €497,- €775,- €1054,-In de stappen na “Reserveer nu” kun je je reis naar wens op maat aanpassen (bijvoorbeeld vluchtarrangement of boot toevoegen, maaltijden, skipassen, excursies reserveren en materiaal huren of extra’s zoals haardhout of babybed toevoegen.
- © 2026 Scandic Booking
- Algemene voorwaarden
- Privacyverklaring

