Beschikbaarheid controleren
BJØNNLIMORKA 3
Kvitfjell, VestsidenAccommodatie
In het kort
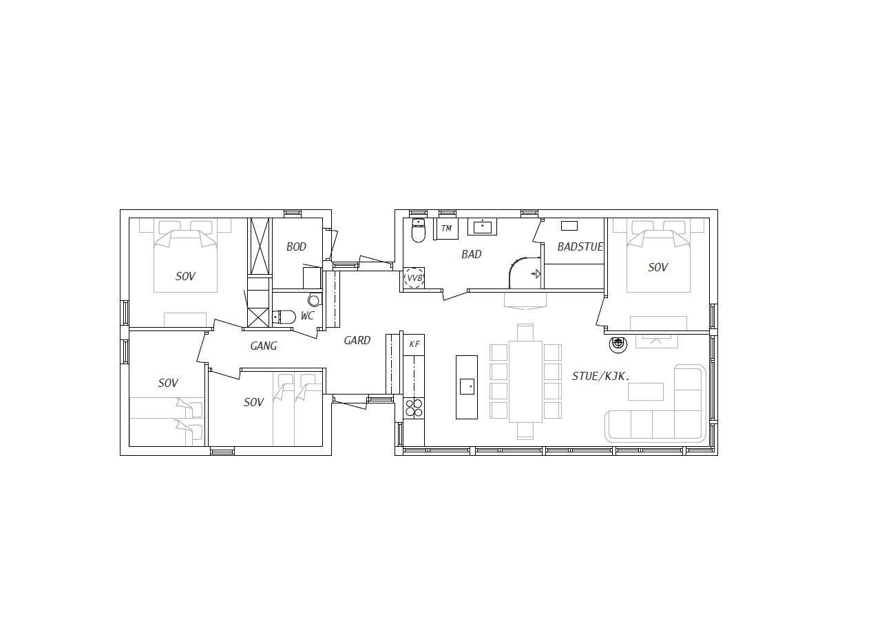
Cabine met 4 slaapkamers, 10 bedden, 1 badkamer en een sauna. Toegang tot de ski-in/ski-out.
Huisje
10 bedden
Onbekendm tot de lift
Welkom bij Bjønnlimorka 3! Gelegen aan de westkant, op slechts een korte afstand van zowel alpineskiën als langlaufen. Bij Skitorget vindt u skiverhuur, een skischool, een sportwinkel, Gondolen Fjellbistro en een supermarkt/deli. Er zijn ook diverse restaurants en après-skiplekken in de buurt.
In de zomer zijn er uitstekende wandel- en fietsmogelijkheden. Een rit van 30 minuten brengt u naar diverse bezienswaardigheden, zoals Hunderfossen in het zuiden en het Fron Water Park in het noorden. Ook vindt u in de buurt charmante stadjes als Fåvang en het dorp Ringebu.
Bjønnlimorka 3 biedt alles wat u nodig heeft voor een ontspannen verblijf. De keuken is voorzien van een kookplaat, koelkast, vriezer, vaatwasser en koffiezetapparaat. De eetkamer biedt plaats aan 8 personen, ideaal om samen van een maaltijd te genieten. Na een dag vol activiteiten kunt u heerlijk ontspannen in de woonkamer, uitgerust met een bank, tv en een warme open haard, ideaal voor gezellige avonden bij het vuur.
Slaapkamers:
Slaapkamer 1: tweepersoonsbed (180cm x 200cm)
Slaapkamer 2: tweepersoonsbed (180cm x 200cm)
Slaapkamer 3: familiestapelbed (140cm/90cm x 200cm)
Slaapkamer 4: familiestapelbed (140cm/90cm x 200cm)
Badkamers:
Badkamer 1: douche, toilet en sauna
+ apart toilet
Aanvullende informatie:
Wifi
Open haard
Terras
Grill
Skiopslag beschikbaar voor gasten
Wasmachine en droger
Huisdieren zijn niet toegestaan
Buiten parkeren
EV-oplader beschikbaar
Faciliteiten
Onderstaand vind je een overzicht van alle faciliteiten in deze accommodatie. Geniet van een ontspannen en comfortabel verblijf op deze fijne plek.
Huisje
Oplaadpaal10 bedden
Onbekendm tot de lift
WifiBalkonHuisdieren toegestaan
Vaatwasser

WasmachineDroogruimte
OpenhaardKoelkast
Roken verboden
Magnetron
BubbelbadSauna

Zwembad
Prijsinformatie
| Periode | Prijs |
|---|
Skigebied Kvitfjell
Kvitfjell is een rustig, sportief skigebied met brede pistes en spectaculaire uitzichten. Perfect voor wie houdt van kwaliteit, uitdaging en ontspanning – zonder drukte. Ook ideaal voor gezinnen dankzij de overzichtelijke kinderzones.
Skigebied Kvitfjell is een modern en sportief skigebied met verrassend veel charme. Op slechts een uur van Lillehammer geniet je hier van rust, kwaliteit en prachtige uitzichten. De pistes zijn verdeeld over drie bergzijden, wat zorgt voor afwisseling én adembenemende panorama’s.
Olympisch erfgoed en pistekwaliteit
Gebouwd voor de Olympische Spelen van 1994 en nog altijd een World Cup-locatie. Met 34 kilometer aan goed geprepareerde pistes – van groen tot zwart – is er uitdaging voor elk niveau skiër.
Sfeervol en kindvriendelijk
Geen druk centrum, maar wel knusse cabins, haardvuren en ski-in/ski-out lodges met uitzicht. Gezinnen vinden overzichtelijke kinderzones en een funslope, terwijl de rustige sfeer zorgt voor ontspannen vakantiedagen in de sneeuw.
De leukste activiteiten in Kvitfjell
Naast skiën of snowboarden kun je tijdens je wintersport in Kvitfjell zoveel meer beleven: van winterse avonturen zoals sneeuwschoenwandelen, langlaufles nemen of een huskytour doen, tot het Noorderlicht spotten of avondskiën.
Ontdek hieronder onze favoriete tips voor de leukste activiteiten in Kvitfjell.
Wil je een van onderstaande activiteiten doen? Geef dit dan direct aan in je offerte-aanvraag, want excursies en activiteiten zitten snel vol in het hoogseizoen.
Dagje langlaufen – actief buiten de piste!
Zin in frisse lucht en beweging buiten de skipistes? Probeer langlaufen – dé sport van de Noren! Je glijdt op smalle ski’s door bossen en over open vlaktes, in een ritmisch en intensief tempo dat je hele lichaam aan het werk zet.
Langlaufen is in Noorwegen een wintertraditie, met loipes voor elk niveau. Rustig of juist sportief – jij kiest het tempo.
Wij regelen graag een les en de huur van het materiaal.
Prijs op aanvraag
Vervoer naar Kvitfjell
Naar Kvitfjell Noorwegen reizen kan met de eigen auto (per ferry), of met het vliegtuig en een transfer met bus of huurauto naar je accommodatie.
In je offerte-aanvraag kun je je voorkeuren aangeven of je met de boot of het vliegtuig wilt reizen, je ontvangt dan in je offerte een compleet advies met totaalprijs voor jouw skivakantie Noorwegen.
Boot
Op wintersport naar Kvitfjell Noorwegen? Dat kan makkelijk én comfortabel met de boot. De populairste (en meest directe) route is de Color Line overtocht van Kiel naar Oslo: een luxe mini-cruise waarbij je ontspannen aankomt in Noorwegen. Vanaf de haven in Oslo is het nog maar 3 uur rijden naar Kvitfjell.
Hieronder vind je meer informatie over de verschillende ferries. Laat gerust je voorkeur weten bij je aanvraag – wij denken graag met je mee!
Een bijzondere manier om je skivakantie te beginnen is met de luxe cruiseferry van Color Line. Veel van onze klanten kiezen elk jaar voor deze ontspannen start van hun vakantie. Je vertrekt met eigen auto richting Kiel in Noord Duitsland (slechts 5 uur rijden vanuit Utrecht) en vanuit daar vertrekt de ferry om 14.00 uur, via de Deense wateren richting Noorwegen. Onderweg geniet je van alle faciliteiten, zoals diverse restaurants, winkels, zwemparadijs, wellness en theatershow. Voor kinderen én ouders een unieke ervaring!
Color Line ferry: een mini-cruise ervaring door het Oslo fjord
Terwijl je slaapt in een comfortabele hut, vaart het schip verder en de volgende ochtend word je uitgerust wakker en vaar je door het prachtige Oslofjord. Je komt om 10 uur ’s ochtends uitgerust aan in Oslo. Zo is je vakantie al begonnen voordat je op de ski’s staat!
Comfortabel overnachten in een luxe hut
Of je nu kiest voor een binnenhut of een buitenhut met uitzicht over zee, je bent verzekerd van een goede nachtrust op een heel comfortabel bed. Er zijn verschillende typen hutten, van luxe 3- en 4-sterren hutten tot suites met extra ruimte en comfort. Zo is er altijd een hut die past bij jouw wensen.
Vertrektijden
- Heenreis (per eigen auto naar Kiel – 5 uur rijden vanaf Utrecht): Vertrek Kiel 14.00 uur – Aankomst Oslo 10.00 uur (volgende dag)
- Terugreis (per eigen auto naar Oslo): Vertrek Oslo 14.00 uur – Aankomst Kiel 10.00 uur (volgende dag)
Prijzen overtocht
De tarieven voor de bootovertochten zijn continu aan verandering onderhevig (dynamische prijzen die fluctueren afhankelijk van het seizoen en je boekingsdatum).
Vanaf prijzen:
- voor 2 pers. In 2 p. hut + auto: vanaf € 388,- p.p. retour
- voor 4 pers. In 4 p. hut + auto: vanaf € 249,- p.p. retour
Boek Color Line met concurrerende prijzen via Scandic Booking
Door onze jarenlange samenwerking met Colorline ontvangen wij scherpere prijzen. Hierdoor bent u met een pakketreis via Scandic Booking altijd voordeliger uit dan wanneer u de bootovertocht zelf los boekt. Je kunt via ons een voorstel aanvragen, dan sturen wij je een reisvoorstel op maat.
Ontspannen naar Zweden met de ferry van Stena Line
Begin je wintersportvakantie op een comfortabele manier met een overtocht van Stena Line. Veel reizigers kiezen voor deze relaxte route via Duitsland en Zweden. Je rijdt met je eigen auto naar Kiel (ongeveer 5 uur vanaf Utrecht) en vertrekt ’s avonds richting Göteborg. Aan boord geniet je van een rustige avond, een dinerbuffet als je wilt, en een goede nachtrust in je eigen hut.
Aan boord: eten, relaxen en comfortabel slapen
Stena Line biedt verschillende faciliteiten om je overtocht aangenaam te maken. Er zijn restaurants, bars en een winkel aan boord. Overnachten doe je in een van de vele huttypes: van eenvoudige binnenhutten tot luxe Panorama Jacuzzi Suites. Alle hutten zijn uitgerust met beddengoed en een eigen badkamer met douche, toilet en verzorgingsproducten. Voor een complete reiservaring kun je bij ons vooraf het diner- en/of ontbijtbuffet reserveren.
Stena Line: ’s nachts varen, ’s ochtends aankomen
Terwijl jij slaapt, vaart de ferry richting Zweden. De volgende ochtend word je uitgerust wakker in Göteborg en kun je direct doorrijden naar je wintersportbestemming.
- Vertrektijden
Heenreis (eigen auto naar Kiel): Vertrek Kiel 18.45 uur – Aankomst Göteborg 09.15 uur (volgende dag) - Terugreis (eigen auto naar Göteborg): Vertrek Göteborg 18.45 uur – Aankomst Kiel 09.15 uur (volgende dag)
Tarieven overtocht
De prijzen van de ferry zijn afhankelijk van het seizoen en de boekingsdatum (dynamische prijzen). Boek je de overtocht in combinatie met een accommodatie bij ons, dan profiteer je altijd van een voordeliger tarief dan via de rederij zelf.
Voorbeeldprijzen retour (auto + hut):
- 2 personen in een 2-persoons hut: vanaf € 380,- retour
Maaltijden aan boord
- Ontbijtbuffet: € 13,- (volw.) / € 7,50 (kind 4-15 jaar)
- All-inclusive dinerbuffet*: € 36,- (volw.) / € 18,- (kind 4-15 jaar)* inclusief bier, wijn, frisdranken en koffie
Tip! Boek diner & show voor een bijzondere reiservaring!
Kies je voor de overtocht met de Color Line ferry tijdens je wintersport naar Noorwegen? Maak er een complete avond uit van, door vooraf een dinerbuffet of 3-gangen a la carte diner te reserveren. Daarnaast kun je via ons ook een tafel boeken voor de live entertainment show aan boord. Met name op drukke afvaarten is het snel volgeboekt, dus het is slim om op tijd te reserveren.
Geef in je offerte-aanvraag aan dat je een tafel voor diner en/of show wilt reserveren – dan regelen wij de rest!
Vliegarrangement
Indien je liever met het vliegtuig naar je wintersportvakantie gaat, dan kun je via ons ook je vlucht en transfer naar Kvitfjell boeken. Je vliegt dan naar Oslo Gardermoen en vanaf daar zijn er twee handige opties om verder te reizen:
Optie 1: vliegarrangement met de trein & taxi naar Kvitfjell – De trein brengt je comfortabel in een kleine 2 uur van het vliegveld naar Lillehammer. Daar wacht onze taxi je op en brengt je naar je accommodatie.
Optie 2: vliegarrangement met een huurauto naar Kvitfjell – ideaal als je flexibel wilt zijn, ook in Kvitfjell zelf. Via onze betrouwbare partner regelen we dit graag voor je.
Wil je een compleet vliegarrangement inclusief trein & taxi of huurauto bijboeken? Geef het aan bij je offerte-aanvraag, dan stellen we een passend pakket voor je samen!
Skipas, - lessen en verhuur
Wil je materiaal huren, lessen boeken of skipassen vantevoren kopen? Dit kun je toevoegen aan je reis in de volgende stappen van je offerte-aanvraag.
Skipassen
Prijzen en kopen van skipas in Kvitfjell
De kosten van een skipas in Kvitfjell zijn afhankelijk van het seizoen en de koers van de Noorse kroon. Je kunt je skipas ter plekke kopen, maar van tevoren skipassen reserveren is altijd voordeliger.
Bestel je skipas via Scandic Booking voor extra korting
Het is het makkelijkst en voordeligste om je skipassen van tevoren via Scandic Booking te bestellen. Je ontvangt dan een QR code, waarmee je de pas ter plekke uit een skipas-automaat haalt. Als je een bestaande skipas hebt dan kunnen we deze ook van tevoren voor je opwaarderen.
Wat zijn de kosten van een skipas/ liftpas in skigebied Kvitfjell?
Voor een dagkaart of liftpas van 6-8 dagen kun je in Kvitfjell rekening houden met onderstaande richtprijzen. Deze prijzen variëren afhankelijk van seizoen en wisselkoers:
Richtprijzen skipas Kvitfjell
Prijzen skipas 1 dag (hoogseizoen):
-
Volwassene: ± € 52,-
Senior & kind (0-17 jr): ± €. 43,-
Kind (0-6 jr) : gratis
Prijzen skipas 6-8 dagen (hoogseizoen):
-
Volwassene: ± €243,-
Senior & kind (0-15 jr): ± €197,-
Kind (0-6 jr) : gratis
Wil je je skipassen van tevoren via ons reserveren, geef dit dan aan in je offerte-aanvraag, dan nemen wij dit mee in je reisvoorstel.
Lessen
Snowboard-, langlauf of skilessen boeken in Kvitfjell
Wil je ski-, snowboard- of langlauflessen boeken in Kvitfjell? Wij raden je aan om lessen zo ver mogelijk van tevoren te regelen, want tijdens het hoogseizoen zijn er ter plekke niet altijd voldoende instructeurs beschikbaar indien je niet hebt gereserveerd.
Let op: in tegenstelling tot de Alpenlanden, duren de groepslessen in Noorwegen vaak maar 90 minuten. Voor kinderen is er eventueel wel opvang te boeken indien je dat wilt.
Zeker weten dat je les kunt nemen? Reserveer van tevoren via Scandic Booking
Geef in je offerte-aanvraag of accommodatieboeking aan dat je lessen wilt reserveren, dan nemen wij contact met je op om te inventariseren wat voor lessen je wilt, voor hoeveel personen en wat je voorkeuren zijn qua data, tijd en type les zodat we een geschikte skischool voor je kunnen zoeken.
Richtprijzen voor snowboard-, langlauf en skilessen Kvitfjell
De prijzen voor lessen zijn voornamelijk afhankelijk van of je privéles of groepsles wilt en van de wisselkoers op het moment van boeking. Je kunt ongeveer rekenen op:
-
Groepsles: €138 p.p. per 5 dagen (90 min per les)
Privéles: €83 (90 min per les)
Wil je je lessen van tevoren via ons reserveren, geef dan je voorkeuren en wensen aan in je offerte-aanvraag, dan nemen wij dit mee in je reisvoorstel.
Materiaalhuur
Snowboard of ski’s huren in Kvitfjell
Materiaalhuur is via ons vaak voordeliger dan via lokale partijen (en in elk geval nooit duurder dan ter plekke). Bespaar jezelf de moeite van ‘het geregel’ en reserveer je materiaal via ons, dan zorgen wij dat alles voor je klaarstaat bij onze partner.
Materiaalhuur via Scandic Booking
In de volgende stappen van je offerte-aanvraag kun je aangeven of je via ons materiaal wilt huren. Wij nemen dan contact met je op om te inventariseren welk materiaal je nodig hebt en voor welke dagen, zodat wij ervoor kunnen zorgen dat alles al voor je klaar ligt bij aankomst.
Prijsindicatie materiaalhuur
De prijzen voor het materiaal kunnen variëren afhankelijk van seizoen, verhuurder en wisselkoers. Geef in je offerte-aanvraag je wensen aan, dan nemen wij je materiaalhuur mee in je reisvoorstel.
Prijzen compleet pakket skihuur 6 dagen (hoogseizoen):
-
Volwassene beginner: ± €100,- (beginner), ± €115,- (has skied before), ± €136,- (can ski all slopes), ± €163,- (advanced)
Jeugd (7-17 jr): ± €85,-
Kind (0-6 jr) :± €50,-
Prijzen compleet pakket skihuur 1 dag (hoogseizoen):
-
Volwassene beginner: ± €37,- (beginner), ± €42,- (has skied before), ± €50,- (can ski all slopes), ± €56,- (advanced)
Jeugd (7-17 jr): ± €32,-
Kind (0-6 jr) :± €17,-
Aantal personen
Gekozen aankomst datum
Duur?
vanaf?
€0,-In de stappen na “Reserveer nu” kun je je reis naar wens op maat aanpassen (bijvoorbeeld vluchtarrangement of boot toevoegen, maaltijden, skipassen, excursies reserveren en materiaal huren of extra’s zoals haardhout of babybed toevoegen.
- © 2026 Scandic Booking
- Algemene voorwaarden
- Privacyverklaring

