Beschikbaarheid controleren
Bakken 210
Hemsedal, Bakken ApartmentAccommodatie
Bakken Apartment biedt accommodatie op loopafstand van het kindergebied, de supermarkt, de langlaufwinkel, de skiverhuur en de sportwinkel. Bakken is gelegen in Hemsedal Fjellandsby (een servicegebied), waar u restaurants vindt, na ski, sportscheer en nachtleven.
In het kort
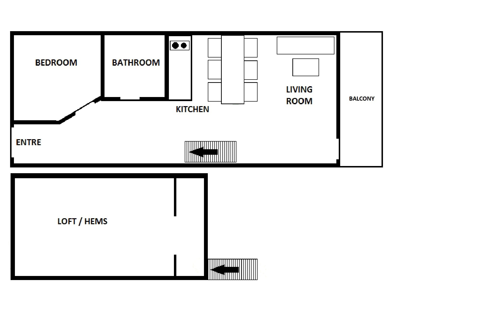
Bakken appartement is gelegen in Hemsedal Skisenter. Appartement, 6 bedden, 60 m², woonkamer met gecombineerde keuken, 1 slaapkamer, 1 zolder, 1 douche, 1 toilet.
Appartement
Oplaadpaal
6 bedden
300m tot de lift
Wifi
Keuken: kookplaat met 2 kookplaten, oven, koelkast met vriesvak, vaatwasser.
Badkamers:Badkamer 1: douche, toilet.
Slaapkamers:Slaapkamer 1: 1 tweepersoonsbed.
Loft 1: 4 eenpersoonsbedden.
Huisdieren toegestaan, roken niet toegestaan.
Dit verblijf is geschikt voor een groep vrienden tijdens de weekenden, Pasen en Nieuwjaar. Tijdens deze periodes kunt u geluidsoverlast van de après-ski/nachtclub en het nachtleven verwachten. Geschikt voor gezinnen, van zondag tot vrijdag. De minimumleeftijd om deze accommodatie te boeken is 18 jaar voor de gast. Niemand onder de 18 jaar kan in de unit verblijven.NB! Geldt niet voor gezinnen. De persoon die verantwoordelijk is voor de boeking moet het gehele verblijf in de unit wonen. Identiteitsbewijs bij aankomst.
De afstand tot de lift/piste kan variëren, afhankelijk van de sneeuwcondities.
TV.
Skikluisje, Balkon (geen sneeuwruimen), Parkeren in een garage is mogelijk tegen betaling (er is gratis parkeergelegenheid buiten beschikbaar), toegang tot gedeelde oplader voor elektrische auto’s met type 2 stopcontact tegen betaling.
Toegang tot gratis Wi-Fi (mogelijke onderbrekingen bij een deel van de breedbandaanbieder voorbehouden).
Voor de volgende weken/perioden is dit verblijf gereserveerd voor alpineskiërs in ons skigebied: weekend van kalenderweek 3 (2026 en 2027). Dit betekent dat u op het moment van reserveren skipassen voor alle gasten (7 jaar en ouder) voor minimaal de duur van uw verblijf moet reserveren.
Faciliteiten
Onderstaand vind je een overzicht van alle faciliteiten in deze accommodatie. Geniet van een ontspannen en comfortabel verblijf op deze fijne plek.
Appartement
Oplaadpaal
6 bedden
300m tot de lift
Wifi
Balkon
Huisdieren toegestaan
Vaatwasser

WasmachineDroogruimte
OpenhaardKoelkast
Roken verboden
Magnetron
BubbelbadSauna
Zwembad
Prijsinformatie
| Periode (Gekozen aankomst datum 15-04-2026) | Prijs |
|---|---|
| 1 nacht | vanaf €272,- |
| 2 nachten | vanaf €412,- |
| 3 nachten | vanaf €707,- |
| 4 nachten | vanaf €939,- |
Inbegrepen extra's
-
Eindschoonmaak
Bij te boeken / niet inbegrepen extra's
-
Extra huisdierentoeslag
-
Children´s cot.
-
Children´s highchair.
-
Linnenpakket
Hemsedal skigebied
Hemsedal is een sneeuwzeker paradijs voor avontuurlijke gezinnen en sportieve skiërs. Met hoge toppen, afwisselende pistes en een levendige sfeer beleef je hier een actieve wintersport in de prachtige “Scandinavische Alpen”.
Hemsedal ligt centraal tussen Oslo en Bergen en is een van de hoogste skigebieden van Noorwegen. Het sfeervolle dorp ligt vlak bij het skigebied en biedt een leuke mix van restaurants, gezellige accommodaties en bekende afterski. Dankzij de moderne liften en goede faciliteiten is Hemsedal populair bij gezinnen, stellen én vriendengroepen.
Pistes voor elk niveau skiër
Met ruim 50 km aan pistes is er volop variatie. Brede, rustige afdalingen maken het toegankelijk voor beginners, terwijl gevorderden uitdaging vinden op steilere stukken en off-piste mogelijkheden.
Snowboardvriendelijk met groot snowpark
Snowboarders kunnen zich uitleven in het uitgebreide snowpark met jumps, rails en fun features. Ook op de gewone pistes is Hemsedal zeer boardvriendelijk dankzij de vloeiende afdalingen en fijne sneeuwcondities.
De leukste activiteiten in Hemsedal
Naast skiën of snowboarden kun je tijdens je wintersport in Hemsedal zoveel meer beleven: van winterse avonturen zoals sneeuwschoenwandelen, langlaufles nemen of een huskytour doen, tot het Noorderlicht spotten of avondskiën.
Ontdek hieronder onze favoriete tips voor de leukste activiteiten in Hemsedal.
Wil je een van onderstaande activiteiten doen? Geef dit dan direct aan in je offerte-aanvraag, want excursies en activiteiten zitten snel vol in het hoogseizoen.
Dagje langlaufen – actief buiten de piste!
Zin in frisse lucht en beweging buiten de skipistes? Probeer langlaufen – dé sport van de Noren! Je glijdt op smalle ski’s door bossen en over open vlaktes, in een ritmisch en intensief tempo dat je hele lichaam aan het werk zet.
Langlaufen is in Noorwegen een wintertraditie, met loipes voor elk niveau. Rustig of juist sportief – jij kiest het tempo.
Wij regelen graag een les en de huur van het materiaal.
Prijs op aanvraag
Hoe kun je het beste naar Hemsedal reizen?
Naar Hemsedal Noorwegen reizen kan met de eigen auto (per ferry), of met het vliegtuig en een transfer met bus of huurauto naar je accommodatie.
In je offerte-aanvraag kun je je voorkeuren aangeven of je met de boot of het vliegtuig wilt reizen, je ontvangt dan in je offerte een compleet advies met totaalprijs voor jouw skivakantie Noorwegen.
Boot
Op wintersport naar Hemsedal Noorwegen? Dat kan makkelijk én comfortabel met de boot. De meest directe (en populairste) route is de Color Line overtocht van Kiel naar Oslo: een luxe mini-cruise waarbij je ontspannen aankomt in Noorwegen. Vanuit de haven in Oslo is het nog maar 3 uur rijden naar Hemsedal. Je komt uitgerust aan — klaar voor voor een super wintersport!
Hieronder vind je meer informatie over de verschillende ferries. Laat gerust je voorkeur weten bij je aanvraag – wij denken graag met je mee!
Een bijzondere manier om je skivakantie te beginnen is met de luxe cruiseferry van Color Line. Veel van onze klanten kiezen elk jaar voor deze ontspannen start van hun vakantie. Je vertrekt met eigen auto richting Kiel in Noord Duitsland (slechts 5 uur rijden vanuit Utrecht) en vanuit daar vertrekt de ferry om 14.00 uur, via de Deense wateren richting Noorwegen. Onderweg geniet je van alle faciliteiten, zoals diverse restaurants, winkels, zwemparadijs, wellness en theatershow. Voor kinderen én ouders een unieke ervaring!
Een mini-cruise ervaring door het Oslo fjord
Terwijl je slaapt in een comfortabele hut, vaart het schip verder en de volgende ochtend word je uitgerust wakker en vaar je door het prachtige Oslofjord. Je komt om 10 uur ’s ochtends uitgerust aan in Oslo. Zo is je vakantie al begonnen voordat je op de ski’s staat!
Comfortabel overnachten in een luxe hut
Of je nu kiest voor een binnenhut of een buitenhut met uitzicht over zee, je bent verzekerd van een goede nachtrust op een heel comfortabel bed. Er zijn verschillende typen hutten, van luxe 3- en 4-sterren hutten tot suites met extra ruimte en comfort. Zo is er altijd een hut die past bij jouw wensen.
Vertrektijden
- Heenreis (per eigen auto naar Kiel – 5 uur rijden vanaf Utrecht): Vertrek Kiel 14.00 uur – Aankomst Oslo 10.00 uur (volgende dag)
- Terugreis (per eigen auto naar Oslo): Vertrek Oslo 14.00 uur – Aankomst Kiel 10.00 uur (volgende dag)
Prijzen overtocht
De tarieven voor de bootovertochten zijn continu aan verandering onderhevig (dynamische prijzen die fluctueren afhankelijk van het seizoen en je boekingsdatum).
Vanaf prijzen:
- voor 2 pers. In 2 p. hut + auto: vanaf € 388,- p.p. retour
- voor 4 pers. In 4 p. hut + auto: vanaf € 249,- p.p. retour
Boek Color Line met concurrerende prijzen via Scandic Booking
Door onze jarenlange samenwerking met Colorline ontvangen wij scherpere prijzen. Hierdoor ben je met een pakketreis via Scandic Booking altijd voordeliger uit dan wanneer je de bootovertocht zelf los boekt. Je kunt via ons een voorstel aanvragen, dan sturen wij je een reisvoorstel op maat.
Ontspannen naar Zweden met de ferry van Stena Line
Begin je wintersportvakantie op een comfortabele manier met een overtocht van Stena Line. Veel reizigers kiezen voor deze relaxte route via Duitsland en Zweden. Je rijdt met je eigen auto naar Kiel (ongeveer 5 uur vanaf Utrecht) en vertrekt ’s avonds richting Göteborg. Aan boord geniet je van een rustige avond, een dinerbuffet als je wilt, en een goede nachtrust in je eigen hut.
Aan boord: eten, relaxen en comfortabel slapen
Stena Line biedt verschillende faciliteiten om je overtocht aangenaam te maken. Er zijn restaurants, bars en een winkel aan boord. Overnachten doe je in een van de vele huttypes: van eenvoudige binnenhutten tot luxe Panorama Jacuzzi Suites. Alle hutten zijn uitgerust met beddengoed en een eigen badkamer met douche, toilet en verzorgingsproducten. Voor een complete reiservaring kun je bij ons vooraf het diner- en/of ontbijtbuffet reserveren.
Stena Line: ’s nachts varen, ’s ochtends aankomen
Terwijl jij slaapt, vaart de ferry richting Zweden. De volgende ochtend word je uitgerust wakker in Göteborg en kun je direct doorrijden naar je wintersportbestemming.
Vertrektijden
- Heenreis (eigen auto naar Kiel): Vertrek Kiel 18.45 uur – Aankomst Göteborg 09.15 uur (volgende dag)
- Terugreis (eigen auto naar Göteborg): Vertrek Göteborg 18.45 uur – Aankomst Kiel 09.15 uur (volgende dag)
Tarieven overtocht
De prijzen van de ferry zijn afhankelijk van het seizoen en de boekingsdatum (dynamische prijzen). Boek je de overtocht in combinatie met een accommodatie bij ons, dan profiteer je altijd van een voordeliger tarief dan via de rederij zelf.
Voorbeeldprijzen retour (auto + hut):
- 2 personen in een 2-persoons hut: vanaf € 380,- retour
Maaltijden aan boord
- Ontbijtbuffet: € 13,- (volw.) / € 7,50 (kind 4-15 jaar)
- All-inclusive dinerbuffet*: € 36,- (volw.) / € 18,- (kind 4-15 jaar)* inclusief bier, wijn, frisdranken en koffie
Vliegarrangement
Boek je vlucht en transfer naar Hemsedal boeken. Je vliegt dan naar Oslo Gardermoen en vanaf daar zijn er twee handige opties om verder te reizen:
Optie 1: vliegarrangement met de bus naar Hemsedal – We kijken eerst met je mee of jouw accommodatie en het ophalen van de sleutel wel makkelijk te doen zijn vanaf de bushalte in Hemsedal en op basis daarvan zoeken wij de beste vlucht- en busaansluitingen tegen de meest gunstige prijs voor je uit. De bus brengt je comfortabel in 3/3,5 uur naar Hemsedal.
Optie 2: vliegarrangement met een huurauto naar Hemsedal – ideaal als je flexibel wilt zijn, ook in Hemsedal zelf. Via onze betrouwbare partner regelen we dit graag voor je.Indien je liever met het vliegtuig naar je wintersportvakantie gaat, dan kun je via ons oo
Wil je een compleet vliegarrangement inclusief bus of huurauto bijboeken? Geef het aan bij je offerte-aanvraag, dan stellen we een passend pakket voor je samen!
Skipas, - lessen en verhuur
Wil je materiaal huren, lessen boeken of skipassen vantevoren kopen? Dit kun je toevoegen aan je reis in de volgende stappen van je offerte-aanvraag.
Skipassen
Prijzen en kopen van skipas in Hemsedal
De kosten van een skipas in Hemsedal zijn afhankelijk van het seizoen en de koers van de Noorse kroon. Je kunt je skipas ter plekke kopen, maar van tevoren skipassen reserveren is altijd voordeliger.
Bestel je skipas via Scandic Booking voor extra korting
Het is het makkelijkst en voordeligste om je skipassen vantevoren via Scandic Booking te bestellen. Je ontvangt dan een QR code, waarmee je de pas ter plekke uit een skipas-automaat haalt. Als je een bestaande skipas hebt dan kunnen we deze ook vantevoren voor je opwaarderen.
Boek je voor 1 oktober via Scandic Booking dan krijg je 10% vroegboekkorting op je skipassen.
Wat zijn de kosten van een skipas in skigebied Hemsedal?
Voor een dagkaart of liftpas van 6-8 dagen kun je inHemsesdal rekening houden met onderstaande richtprijzen. Deze prijzen variëren afhankelijk van seizoen en wisselkoers:
Richtprijzen skipas Hemsedal
Prijzen skipas 1 dag (hoogseizoen):
Volwassene: ± € 55,-
Senior & jeugd (7-15 jr): ± €. 44,-
Kind (0-6 jr): gratis
Prijzen skipas 6-8 dagen (hoogseizoen):
Volwassene: ± €270,-
Senior & jeugd (7-15 jr): ± €215,-
Kind (0-6 jr): gratis
Wil je je skipassen van tevoren via ons reserveren, geef dit dan aan in je offerte-aanvraag, dan nemen wij dit mee in je reisvoorstel.
Lessen
Snowboard-, langlauf of skiles in Hemsedal
Wil je ski-, snowboard- of langlauflessen boeken in Hemsedal? Wij raden je aan om lessen zo ver mogelijk van tevoren te regelen, want tijdens het hoogseizoen zijn er ter plekke niet altijd voldoende instructeurs beschikbaar indien je niet hebt gereserveerd.
Let op: in tegenstelling tot de Alpenlanden, duren de groepslessen in Noorwegen vaak maar 75-90 minuten. Voor kinderen is er eventueel wel opvang te boeken indien je dat wilt.
Zeker weten dat je les kunt nemen? Reserveer van tevoren via Scandic Booking
Geef in je offerte-aanvraag of accommodatieboeking aan dat je lessen wilt reserveren, dan nemen wij contact met je op om te inventariseren wat voor lessen je wilt, voor hoeveel personen en wat je voorkeuren zijn qua data, tijd en type les zodat we een geschikte skischool voor je kunnen zoeken.
Richtprijzen voor snowboard-. Langlauf en skilessen Hemsedal
De prijzen voor lessen zijn voornamelijk afhankelijk van of je privéles of groepsles wilt en van de wisselkoers op het moment van boeking. Je kunt ongeveer rekenen op:
Groepsles: ± €109,- (5 dagen x 75 min.)
Privéles: ± €96,- (75 min.)
Wil je je lessen van tevoren via ons reserveren, geef dan je voorkeuren en wensen aan in je offerte-aanvraag, dan nemen wij dit mee in je reisvoorstel.
Materiaalhuur
Snowboard of ski’s huren in Hemsedal
Materiaalhuur is via ons vaak voordeliger dan via lokale partijen (en in elk geval nooit duurder dan ter plekke). Bespaar jezelf de moeite van ‘het geregel’ en reserveer je materiaal via ons, dan zorgen wij dat alles voor je klaarstaat bij onze partner.
Materiaalhuur via Scandic Booking
In de volgende stappen van je offerte-aanvraag kun je aangeven of je via ons materiaal wilt huren. Wij nemen dan contact met je op om te inventariseren welk materiaal je nodig hebt en voor welke dagen, zodat wij ervoor kunnen zorgen dat alles al voor je klaar ligt bij aankomst.
Prijsindicatie materiaalhuur
De prijzen voor het materiaal kunnen variëren afhankelijk van seizoen, verhuurder en wisselkoers. Geef in je offerte-aanvraag je wensen aan, dan nemen wij je materiaalhuur mee in je reisvoorstel.
Prijzen compleet pakket skihuur 6-8 dagen (hoogseizoen):
Volwassene beginner: ± €78,- (beginner), ± €92,- (has skied before), ± €111,- (can ski all slopes), ± €152,- (advanced)
Jeugd (7-17 jr): ± €61,-
Kind (0-6 jr) :± €35,-
Prijzen compleet pakket skihuur 1 dag (hoogseizoen):
Volwassene beginner: ± €30,- (beginner), ± €37,- (has skied before), ± €43,- (can ski all slopes), ± €54,- (advanced)
Jeugd (7-17 jr): ± €20,-
Kind (0-6 jr) :± €9,-
Aantal personen
Gekozen aankomst datum
Duur?
vanaf?
€272,- €412,- €707,- €939,-In de stappen na “Reserveer nu” kun je je reis naar wens op maat aanpassen (bijvoorbeeld vluchtarrangement of boot toevoegen, maaltijden, skipassen, excursies reserveren en materiaal huren of extra’s zoals haardhout of babybed toevoegen.
- © 2026 Scandic Booking
- Algemene voorwaarden
- Privacyverklaring

